Designing Spaces Your Mind And Body Adore
The Build: What It Actually Takes to Renovate a 1911 Kitchen
The Build: What It Actually Takes to Renovate a 1911 Kitchen There is a version of a kitchen renovation that exists in...
Victorian Bathroom Renovation: A Full Gut in 36 Square Feet
This is the bathroom I’d put in my own home. I’ve said that out loud more than once since this...
Working with ‘Typical Contractors’
We are done. The job is complete. It’s exactly what the contract stated we would do. Who’s heard...
The Build: What It Actually Takes to Renovate a 1911 Kitchen
Renovating a kitchen in a 1911 Victorian means opening up walls that haven’t been touched in a century. This is that post — the version that comes before the finished photos. The one where the dust is winning and the decisions that make a kitchen last are getting made.
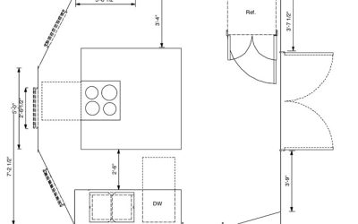
The Layout: Five Openings, a Fireplace, and What Victorian Homes Were Actually Saying
A Victorian kitchen with three bay windows, two single doors, a set of French doors, an original built-in, and a fireplace doesn’t give you many options — it gives you the right ones. This is how the layout got decided.
Moving the Kitchen: A 1911 Folk Victorian
Every contractor who walked through asked the same thing. They were all wrong. This is the story of why the kitchen in a 1911 Folk Victorian needed to move — and what the house was trying to say all along.
Vacation Rental Design Breckenridge Colorado : A Phased Approach to Increasing ROI
Vacation Rental Design, Breckenridge Colorado. A case study for a phased approach in increasing your profit margins and guest satisfaction in the vacation rental market in Summit County, CO. In the picturesque town of Breckenridge, Colorado, my clients...
Preservation, Restoration, Renovation, Rehab: What’s the Difference (and Why It Matters for Your Historic Home)
If you’ve spent any time researching what to do with an older home, you’ve probably seen these words used interchangeably: preservation, restoration, renovation, rehabilitation. They’re not the same thing. The approach you choose shapes every decision that follows —...
What Makes Design Meaningful? Episode 1: Meaningful Design
Interior Designer Lora Frost of Dahlias & Granite Interior Design shares several stories about why design is meaningful to her and her trajectory from being hit by a car as a pedestrian to becoming a landscaper and then transitioning into an interior designer who...
Why Hire an Interior Designer For Your Vacation Rental
I'm currently sitting here in an 1897 historic apartment building in what must be my 53rd Airbnb stay!! As a designer who loves historic properties, it's so lovely to see the beautiful and original heart pine floors, original millwork, and the care put towards keeping...
Introducing The Meaningful Design Show
Welcome the the Meaningful Design Podcast! Design is far more nuanced than picking the perfect pillows for your living room. Great design is curated for your lifestyle, eliminating stress, creating more ease, and allowing you to live your best life. Lora Frost, a...
How To Create A Healthy House
Recently I asked my Facebook Audience how healthy they rated their homes. Today I'll talk about four ways you can increase the health of your home. ** I'm a little more technical in this post, if the science is not your thing, skip on over the sections where I detail...
Victorian Bathroom Renovation: A Full Gut in 36 Square Feet
Are you looking for some bathroom ideas? Take a look at the before and after
photos of a Victorian Style Bathroom that was inspired by a French hotel.
Historic Church Hill Richmond Build – Part 2
This is part 2, of this Historic Church Hill, Richmond, Va project build, check out part 1 here. Now that the fence, and two custom structures are in place, the grading of the site can continue and the hardscaping can start! As the property is on a small slope I...
Historic Church Hill Richmond Build – Part 1
Here is the Before! This is a typical Church Hill, Richmond,VA, Back Yard. Twenty Eight feet wide by 150 feet long, which includes the footprint of the home!! Right after you walk out the back door, you couldn't walk directly out the back door, you had to walk down...
Building a “She Shed” Part 1 of 2
When we purchased our property I was deeply curious about the history behind the three cinderblock walls and concrete pad that had fallen into disrepair. Here is the story as I know it. Many years ago, a woman named Jessie and her sister decided to start a chinchilla...
Working with ‘Typical Contractors’
We are done. The job is complete. It’s exactly what the contract stated we would do. Who’s heard this before from a contractor? Over the past 16 years, I’ve worked with hundreds of contractors, male and female on residential and commercial design/build outdoor...
From Mature Builder Basic to Welcoming French Provincial
As often happens, my clients renovate both inside and outside their homes. In this case the homeowners had just finished their extensive remodel and wanted old world touches added to their home to flow through to the outside as well. Here is what the home looked like...
Smart homes: Tech You Don’t Need To Speak To
I have gone on multiple consultations where (typically) the male partner has set up Alexa to control the lights and it often fails when a female voice asks Alexa to turn on the lights. Multiple asks and yet no lights turn on. Have you had this experience? To preface,...
How to Feel At Home In Your Home – Part 2
In the part one I talk about the importance of considering how you want to feel in each area of your home, how our memories contribute to how we feel about colour, along with lighting and the colour temperature of light. Check out Part One here. Today let's dive into...
How to Feel at Home in Your Home – Part 1
I've always considered myself to be an adventurous soul. I love new experiences, places and foods. When my husband and I started our renovation journey nearly a year ago, we felt exhilarated and excited about the changes that would take our shell of a house to a...
Choosing Colors for your home? Read this first.
Does choosing colors for your walls make you feel like this? Have you grabbed colour sample after colour sample but none of them work, or don’t look how you imagined? Every colour of paint has unique undertones. If you remember back to art class, you’ll likely...
Want To See My Drawers? An inside look at cabinet layout and open shelf styling.
This week I want to talk about the cabinet drawers, making our full sized fridge work in our space as well how we are keeping our open shelving functional! If you've been following along with the Fall 2018 One Room Challenge™, then you are already pretty familiar with...
Light Filled Folk Victorian Kitchen – Finale
Curating what photos tell the story of the space is one of my favourite parts of project completion. And so, here is the full reveal of the finished Light Filled Folk Victorian Kitchen for the One Room Challenge™. Come on in. I could sit in this...
Cabinets, Counters and Lights! – Part 5
Last week in the One Room Challenge™, the trim had just been installed. This week we had the cabinets installed and the counters put in! I didn't have time to paint all the trim before the cabinets came in, so I painted the lower corner by the far left window that...
Walls, Floors and Trim – Part 4
The drywallers came in and gave us some new walls! The dust that sanding drywall mud creates is just as fine as plaster dust, but it doesn't spread as far as the plaster dust did. The fan shown in this photo will be moved to another room. These old fans with only four...
Electrical, Plumbing and HVAC – Part 3
I find it fascinating how a house works from the internals out and incorporating the parts we see (switches, faucets and lighting) to be an integral part of the design process. I liken wiring, plumbing and HVAC lines to be similar to veins and arteries in our bodies....
Kitchen Layouts and Plaster Dust, Oh My – Part 2
I've lived in homes with some of the worst (aka) tiny kitchens out there. I've always been able to make them work, but let me tell you, having a custom kitchen designed for you is the BOMB! For the kitchen to be functional for both my husband and I we each need...
Adding a Kitchen in a Light Filled Folk Victorian – Part 1
"How about you just put the kitchen where the old kitchen was?" Every contractor that walked through the old Folk Victorian house asked me this question. My internal gut reaction every time was "No, no, no, no, no -- Just no". The old kitchen was in smallest room at...
























